SR 307 km 7.9 VILLA NAUTICA, UNION ST, JOSE ST #Lot # 2 Cabo Rojo, Puerto Rico

Property Type: Residential
Subtype: Single Family Residence
Status: Active
4
Rooms
3
Baths
$1,075,000
Sale
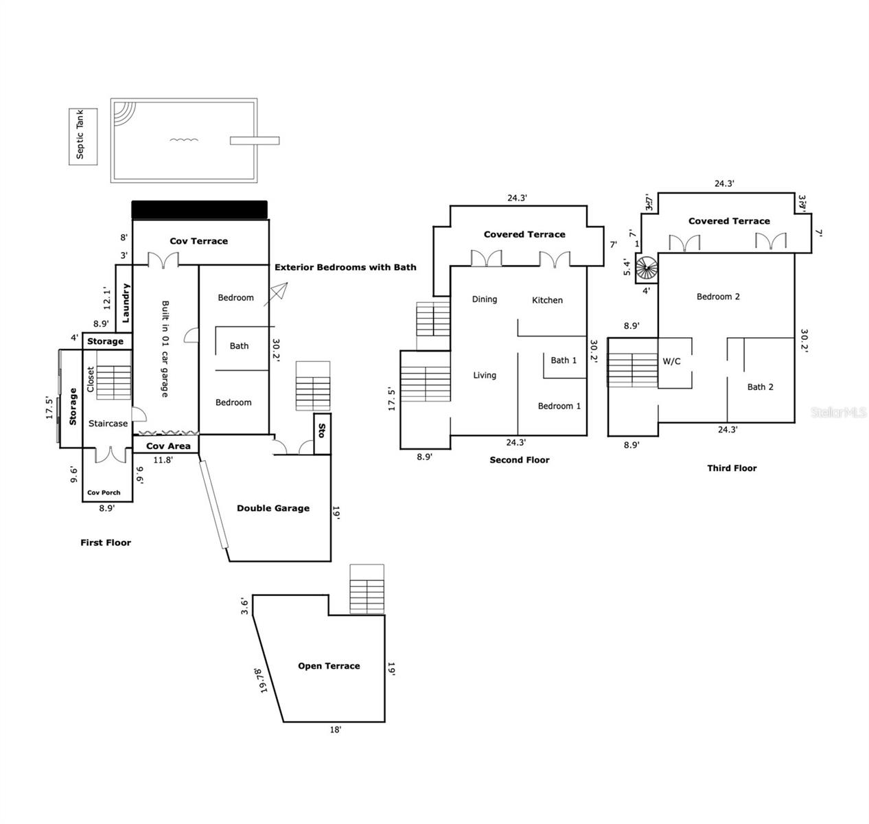
Discover a unique multi-level residence located in the desirable Boquerón Ward of Cabo Rojo, Puerto Rico, near Boquerón Bay Beach. This architect-designed property, known as Villa Náutica, is situated at PR-307 Km 7.9 Interior, Lot #2, Union Street, and offers elevated bay views from all three levels, enhanced by its hillside setting. The property features approximately 3,062 square feet of construction on a 480 square meter lot, built with reinforced concrete walls, reflecting strong and durable construction throughout. Interior stairs connect all levels, creating a flexible layout suitable for multiple living or lifestyle purposes. The ground level includes a terrace with direct access to the saltwater swimming pool, recently renovated with marmoline finish, and offers ocean and bay views. The first interior level features a gym area, small kitchen, living and dining area, two bedrooms, and one full bathroom. The second level offers a more expansive living and dining area, a full-size kitchen, one bedroom, and one full bathroom with modern design and porcelain tile finishes. This level also includes a full balcony and terrace ideal for enjoying the surrounding scenery. The third level serves as the main suite, featuring a private bathroom, walk-in closet, and access to a rooftop area from its own private balcony/terrace. The location provides convenient access to Boquerón Bay Beach and proximity to Cabo Rojo’s extensive coastline, known for offering over 121 beach locations throughout the municipality. Asking price: $1,075,000. Appliances are included. Select furniture may be negotiable.Coordinates: 18.0369, -67.1721.
Address: SR 307 km 7.9 VILLA NAUTICA, UNION ST, JOSE ST #Lot # 2 Cabo Rojo, Puerto Rico 00623

Additional Details

Interior

Total Bedrooms
4
Full Bathrooms
3
Laundry
Inside
Flooring
Tile
Appliances
Convection Oven, Cooktop, Dishwasher, Dryer, Electric Water Heater, Gas Water Heater, Indoor Grill, Kitchen Reverse Osmosis System, Microwave, Range Hood, Refrigerator, Solar Hot Water, Washer, Water Filtration System, Water Purifier, Water Softener, Whole House R.O. System, Wine Refrigerator
Other Interior Features
Cathedral Ceiling(s), Ceiling Fans(s), High Ceilings, Living Room/Dining Room Combo, Open Floorplan, PrimaryBedroom Upstairs, Smart Home, Walk-In Closet(s), Wet Bar, Window Treatments

Exterior

Construction Materials
Brick, Cement Siding, Concrete
Garage Space
2
Cooling
Mini-Split Unit(s)
Other Exterior Features
Balcony, Dog Run, Hurricane Shutters, Lighting, Outdoor Grill, Outdoor Kitchen, Outdoor Shower, Private Yard, Rain Gutters, Sliding Doors, Storage

Rooms

Third Floor
Primary Bedroom 2, Balcony/Porch/Lanai, Bathroom 1
Second Floor
Bedroom 2, Kitchen, Living Room, Dining Room, Balcony/Porch/Lanai, Bathroom 2, Office
First Floor
Bathroom 3, Bedroom 3, Bedroom 4, Gym, Kitchen

General

Garage
Yes

Area and Lot

Lot Size in Acres
0.11
Living Area in SQFT
3062
Architectural Style
Contemporary, Elevated, Mediterranean
Utilities
Cable Available, Cable Connected, Electricity Available, Electricity Connected, Propane, Water Available, Water Connected
View
Garden, Mountain(s), Pool, Trees/Woods, Water

Financial

Annual Tax
$0
HOA Fees
$0

Location

From Rafael Hernández Airport (BQN), take PR-107 South toward Aguadilla. Merge onto PR-2 South toward Mayagüez. Continue on PR-2 until reaching the exit for PR-100 South toward Cabo Rojo. Follow PR-100 South and then take PR-307 toward Boquerón. Continue on PR-307 to Km 7.9 Interior. Turn into Union Street. Property is located at Lot #2, Villa Náutica, Boquerón Ward, Cabo Rojo, Puerto Rico. // Desde el Aeropuerto Rafael Hernández (BQN), tome la PR-107 hacia el sur en dirección a Aguadilla. Incorpórese a la PR-2 hacia el sur en dirección a Mayagüez. Continúe en la PR-2 hasta tomar la salida hacia la PR-100 sur en dirección a Cabo Rojo. Mantengaselos manejando en la PR-100 y luego tome la PR-307 en dirección a Boquerón. Continúe hasta el Km 7.9 Interior y entre a la Calle Unión. La propiedad está ubicada en el Solar #2, Villa Náutica, Barrio Boquerón, Cabo Rojo, Puerto Rico.

Interested in this property? Get in touch

Eddie Nieves Santiago

License: #15185
PO BOX 5258
MAYAGUEZ Puerto Rico, 00681

Newly Added on Same Area

Active
2 ALVARO CREITOFF Cabo Rojo, PR
$2,000
3 Beds
2 Bath
27976 SQFT
Pending
SR 100 URB MONTE SOL YUNQUE STREET LOT # 5 Cabo Rojo, PR
$210,000
3 Beds
2 Bath
3854 SQFT
Active
RD 308 KM 5.8 Interior SOLAR 4 MIRADERO WARD Cabo Rojo, PR
$375,000
3 Beds
2 Bath
13971 SQFT
Pending
BO LLANOS TUNA Cabo Rojo, PR
$80,000
77982 SQFT
Pending
BARRIO LLANOS TUNA Cabo Rojo, PR
$40,000
49449 SQFT
Active
SR 307 km 5.4 GUANIQUILLA PEDERNALES WARD Cabo Rojo, PR
$159,900
2 Beds
2 Bath
5381 SQFT

Recently Sold on Same Area

Closed
307 St. Km. 3.5 COND. BAHIA REAL #201B Cabo Rojo, PR
$200,000
2 Beds
2 Bath
12756 SQFT
Closed
3301 URB. PUERTA DEL COMBATE Cabo Rojo, PR
$1,250
3 Beds
2 Bath
1100 SQFT
Closed
SR-312 km 5.3 int LLANOS TUNA WARD CAMINO ASENCIO Cabo Rojo, PR
$159,900
4 Beds
2 Bath
11530 SQFT
Closed
SR 307 KM 3.5 INT CONDOMINIO BAHIA REAL AT VILLA LA MELA BEACH #204 A Cabo Rojo, PR
$900
2 Beds
2 Bath
1180 SQFT
Closed
SR 103 KM 13.2 CAMIN LOS MARTINEZ SECTOR #LOT 6 Cabo Rojo, PR
$89,900
10763 SQFT
Closed
SR 301 km 7.4 CONDOMINIO PASEO DEL FARO, EL COMBATE #F-303 Cabo Rojo, PR
$265,000
3 Beds
3 Bath
5048 SQFT
Resources
>