SR-307 KM-7 URB BELLO HORIZONTE #LOT 11 Cabo Rojo, Puerto Rico

Tipo de Propiedad: Residencial
Subtipo: Single Family Residence
Estado: Activo
3
Cuartos
2
BaÑos
$369,900
Venta
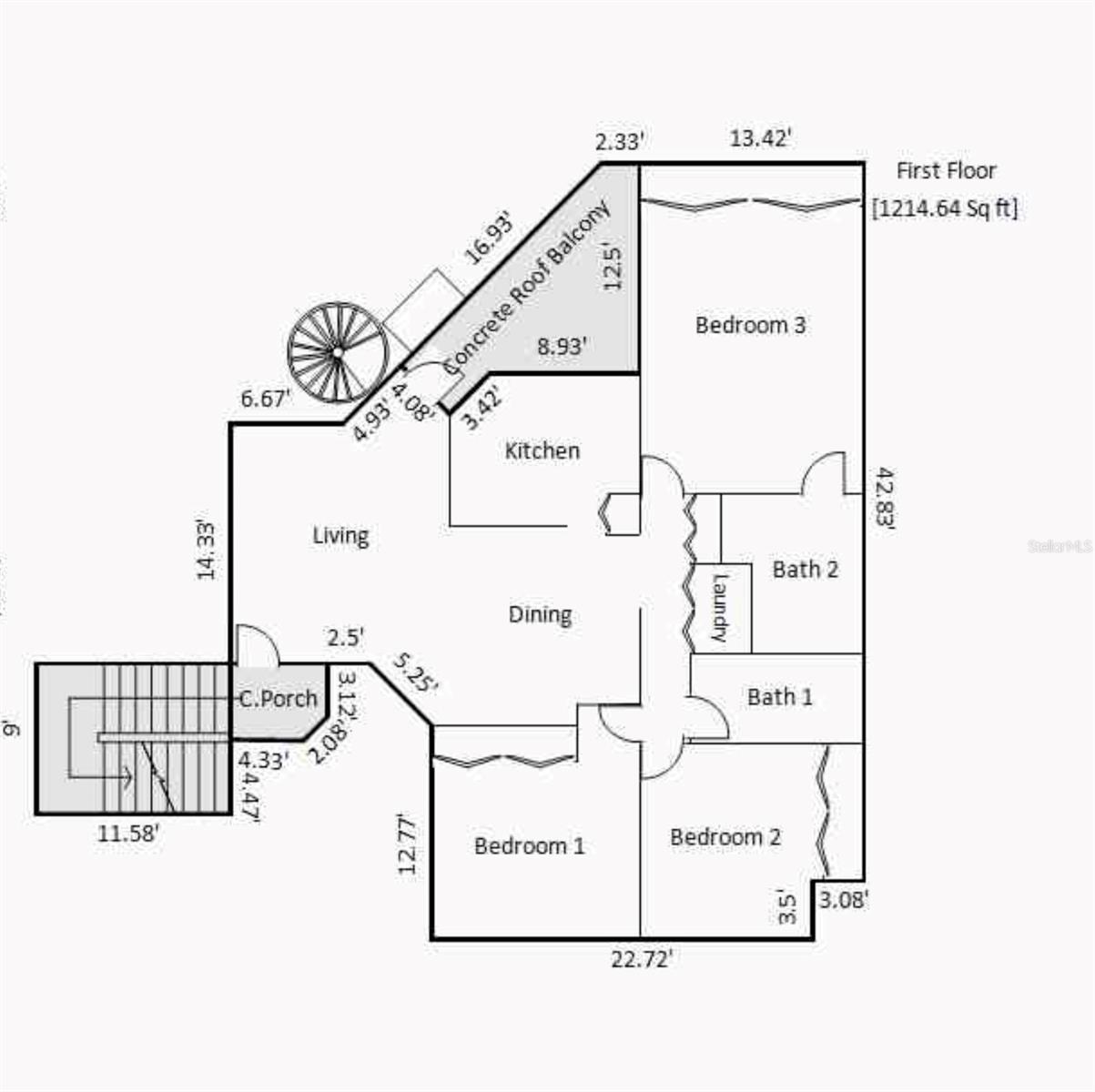
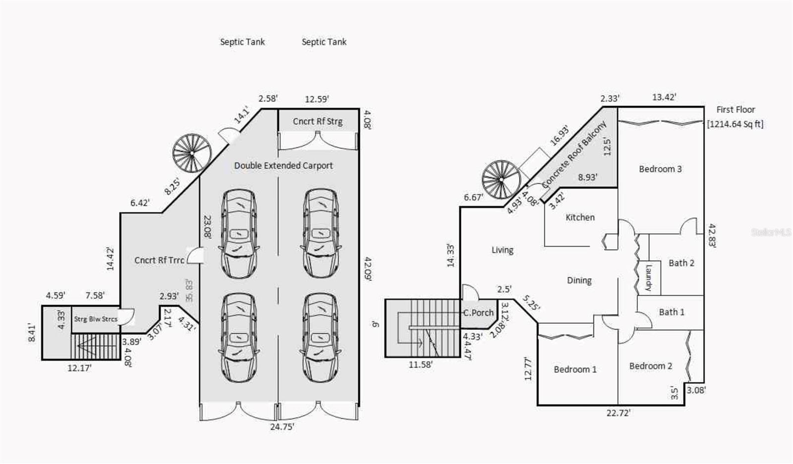
A Two-story single-family residence located in the gated community of Bello Horizonte Development in Cabo Rojo, Puerto Rico. This property offers a harmonious combination of comfort, privacy, and convenience in one of the most desirable residential areas on the island’s southwest coast. The home sits on a 589 square meter interior lot with rectangular configuration and level topography, featuring concrete construction and a gross living area of approximately 1,215 square feet. Designed for tropical living, the house includes six rooms, three bedrooms, and two full bathrooms, offering a comfortable and functional layout. The interior features ceramic floors, concrete walls, and modern finishes throughout the living, dining, and kitchen areas. Each space shows average to good condition, reflecting proper maintenance and normal signs of wear. Humidity was observed in limited areas with a minimal estimated cost to cure of approximately $1,000. Outdoor amenities enhance the property’s appeal and functionality, including a porch, balcony, double extended carport with space for up to four vehicles, two concrete storage units, a spacious concrete roof terrace, and fenced paved areas. The home also includes a spiral staircase that leads to the rooftop, providing open-air views of the residential surroundings. A diesel generator is located on site but considered personal property and excluded from the valuation. The site is located within Flood Zone X (FEMA Map 72000C1545J, dated 11/18/2009), meaning it lies outside the Special Flood Hazard Area. Zoning is classified as RT-I (Intermediate Touristic Residential), allowing for a wide range of residential uses and representing excellent potential for both primary occupancy and long-term investment. Public utilities include PREPA for electricity and PRASA for water, with a private septic tank system located on the rear side of the property. The appraiser notes an extraordinary assumption that the septic tank complies with applicable building and environmental codes. The Bello Horizonte Development is a tranquil and access-controlled neighborhood featuring asphalt roads, concrete sidewalks, curbs, and gutters. The area maintains a stable growth rate and balanced supply and demand in its housing market, with typical marketing times between 3 to 6 months. Nearby amenities include schools, supermarkets, service stations, restaurants, and recreational areas. Access to the main regional highway PR-307 provides easy connectivity to downtown Cabo Rojo, Boquerón Beach, and the scenic coastal routes leading toward Joyuda and El Combate. Market data reflects strong residential stability in this sector. Comparable sales within similar developments ranged between $335,000 and $420,000, supporting a market value conclusion of $364,000 as of August 27, 2025. The property was tenant-occupied at the time of inspection, generating rental income of approximately $650 each month (utilities not included). This property represents a solid opportunity to own a well-maintained home in one of Cabo Rojo’s most sought-after gated communities—ideal for those seeking a peaceful residential environment near Puerto Rico’s most beautiful beaches, natural reserves, and vibrant coastal lifestyle.
Dirección: SR-307 KM-7 URB BELLO HORIZONTE #LOT 11 Cabo Rojo, Puerto Rico 00623

Detalles Adicionales

Interior

Total de Cuartos
3
Baños Completos
2
Pisos
Ceramic Tile
Otros Detalles
Ninguno

Exterior

Materiales de Construcción
Concrete
Espacio de Garaje
2
Otros Detalles
Otro

Cuartos

Second Piso
Primary Bedroom, Primary Bathroom, Bedroom 2, Bedroom 3, Kitchen, Living Room, Dining Room
First Piso
Lavanderia

General

Dias en el Mercado
1
Garaje
Mascotas Permitidas
Cats OK, Dogs OK

Área y Terreno

Tamaño del Terreno en Acres
0.14
Área Habitable en Pies Cuadrados
1215
Utilidades
Electricity Available, Electricity Connected, Water Available, Water Connected

Inversión

Tax Anual
$0
Costos de HOA
$125

Localización

From Rafael Hernández Airport (BQN) in Aguadilla, drive southeast on PR-107 and merge onto PR-2 South toward Mayagüez. Continue on PR-2 for approximately 38 miles, passing through the municipalities of Aguada, Añasco, and Mayagüez. After entering Cabo Rojo, take the exit toward PR-100 South (direction Combate/Boquerón). Continue on PR-100 for about 8 miles, then turn right onto PR-307 toward Boquerón. Follow PR-307 for approximately 3.5 miles, then turn left onto the entrance road of Bello Horizonte Development. The property (Lot 11) is located within this access-controlled community. Show identification at the gate for authorized entry.

¿Interesado en la Propiedad? Comunicate

Eddie Nieves Santiago

Licencia: #15185
PO BOX 5258
MAYAGUEZ Puerto Rico, 00681
Teléfono: 787-307-6673

Nuevos Listados en la Misma Área

Activo
RD 308 KM 5.8 Interior SOLAR 4 MIRADERO WARD Cabo Rojo, PR
$395,000
3 Cuartos
2 Baños
13971 Pies Cuadrados
Pendiente
BO LLANOS TUNA Cabo Rojo, PR
$80,000
77982 Pies Cuadrados
Pendiente
BARRIO LLANOS TUNA Cabo Rojo, PR
$40,000
49449 Pies Cuadrados
Activo
307 St. Km. 3.5 COND. BAHIA REAL #201B Cabo Rojo, PR
$200,000
2 Cuartos
2 Baños
12756 Pies Cuadrados
Activo
SR 307 km 5.4 GUANIQUILLA PEDERNALES WARD Cabo Rojo, PR
$159,900
2 Cuartos
2 Baños
5381 Pies Cuadrados
Activo
SR-313 KM 1.1 SECTOR BALLAJA MONTE GRANDE Cabo Rojo, PR
$180,000
2 Cuartos
2 Baños
6727 Pies Cuadrados

Recientemente Vendido en la Misma Área

Cerrado
SR-312 km 5.3 int LLANOS TUNA WARD CAMINO ASENCIO Cabo Rojo, PR
$159,900
4 Cuartos
2 Baños
11530 Pies Cuadrados
Cerrado
SR 307 KM 3.5 INT CONDOMINIO BAHIA REAL AT VILLA LA MELA BEACH #204 A Cabo Rojo, PR
$900
2 Cuartos
2 Baños
1180 Pies Cuadrados
Cerrado
SR 103 KM 13.2 CAMIN LOS MARTINEZ SECTOR #LOT 6 Cabo Rojo, PR
$89,900
10763 Pies Cuadrados
Cerrado
SR 301 km 7.4 CONDOMINIO PASEO DEL FARO, EL COMBATE #F-303 Cabo Rojo, PR
$265,000
3 Cuartos
3 Baños
5048 Pies Cuadrados
Cerrado
Sector Combate PR 3301 #405A Cabo Rojo, PR
$239,000
2 Cuartos
2 Baños
982 Pies Cuadrados
Cerrado
Carr 102 BO GUANAJIBO Cabo Rojo, PR
$95,000
9687 Pies Cuadrados
Resources
>