30 PADIAL STREET Caguas, Puerto Rico

Property Type: Commercial Lease
Subtype: Office
Status: Active
$102,600
Rent
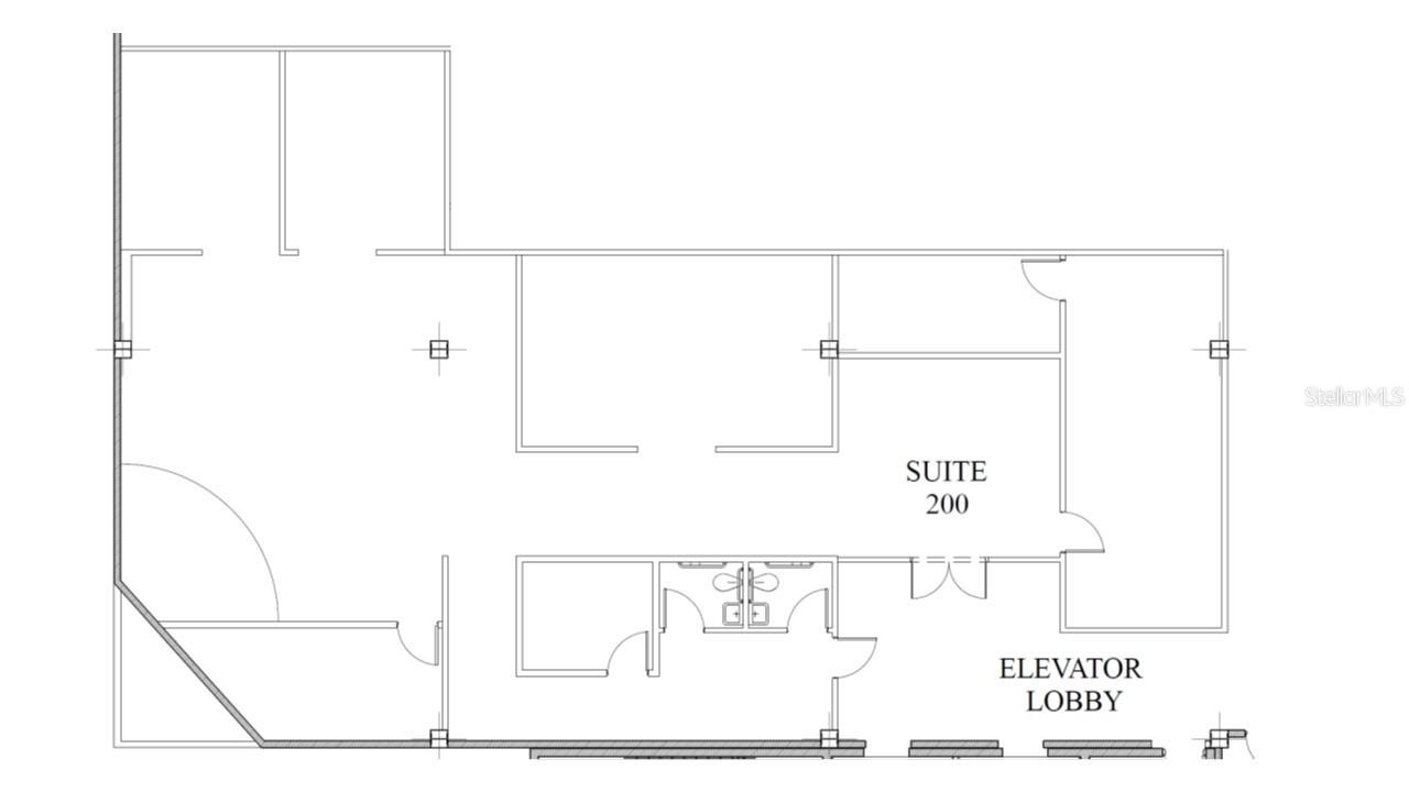
Available space for lease of about 2,700 sqft. in Gatsby Plaza, in the city of Caguas. Rent includes taxes, insurance, water, power, CAMS. Building provides: 2 chillers, 2 cooling towers, and redundant set of pumps to ensure continuous HVAC operation, Rain water collection for HVAC and sanitary use, 1 MVA emergency generator with 2,000 gallon diesel fuel capacity, dedicated fresh air A/C units to maximize outside air entering the building, MERV-14 A/C filters which exceeds the recommended filtration for buildings by the ASHRAE for capturing airborne particles, Ultraviolet lights (UV) installed in Air Handling Units to enhance air quality within the building. Parking spaces are assigned to tenant according to space leased. Gatsby Plaza is strategically located in the Caguas, Puerto Rico urban center, right next to the city’s performing arts center, city hall and one block from the city’s main square (plaza). The location also offers an array of restaurants, pharmacies, banks, municipal service offices and other services nearby.
Address: 30 PADIAL STREET Caguas, Puerto Rico 00725

Additional Details

Exterior

Construction Materials
Concrete
Cooling
Other

General

Days on Market
356

Area and Lot

Lot Size in Acres
0.05

Financial

Annual Tax
$0
HOA Fees
$0

Location

Get on Expreso Las Américas/PR-18 in Eleanor Roosevelt 2 min (500 m) Follow Expreso Las Américas/PR-18 and PR-52 to Calle Cordova/PR-156 in Caguas. Take exit 19 make a left from Autop. Luis A. Ferré/PR-52 17 min (24.1 km) Continue on PR-156 make a left on Rd 33 to your destination in Gatsby

Interested in this property? Get in touch

Carmen Medina

License: #18366
2S41 27th st
Caguas Puerto Rico, 00727

Newly Added on Same Area

Active
A7 Alcazar Caguas Real A7 ALCAZAR CAGUAS REAL Caguas, PR
$975,000
4 Beds
4.1 Bath
13510 SQFT
Active
VILLA DEL REY 4 C/ 8 4S 6 VILLA DEL REY 4 C/ 8 4S 6 Caguas, PR
$120,000
3 Beds
2 Bath
2669 SQFT
Active
686 BURGOS Caguas, PR
$850,000
4 Beds
3.1 Bath
4122 SQFT
Active
CARR 788 KM 6.7 TOMAS DE CASTRO I Caguas, PR
$300,000
2 Beds
2 Bath
114000 SQFT
Pending
28 TURABO GARDENS Caguas, PR
$125,000
3 Beds
2 Bath
2144 SQFT
Active
G102 Serenna Los Prados ^102 SERENNA EN LOS PRADOS #G102 Caguas, PR
$1,975
3 Beds
2 Bath
2325 SQFT

Recently Sold on Same Area

Closed
F-18 San Fernando URB MARIOLGA Caguas, PR
$187,000
3 Beds
2 Bath
1117 SQFT
Closed
Calle Arecibo URB. VILLA CARMEN I 16 Caguas, PR
$1,000
2 Beds
1 Bath
1200 SQFT
Closed
Fincas Mi Recreo 11 SOLAR 2 Caguas, PR
$950
1 Beds
1.1 Bath
23713 SQFT
Closed
St 172 Km 22.4 CANABONCITO WARD Caguas, PR
$1,000
3 Beds
1 Bath
850 SQFT
Closed
111 VILLA FRANCA Caguas, PR
$455,000
4 Beds
2.1 Bath
5381 SQFT
Closed
Caguas, PR
$1,500
3 Beds
2 Bath
1472 SQFT
Resources
>