1366 WILSON AVE #6 San Juan, Puerto Rico

Property Type: Residential Lease
Subtype: Condominium
Status: Active
2
Rooms
2
Baths
$2,700
Rent
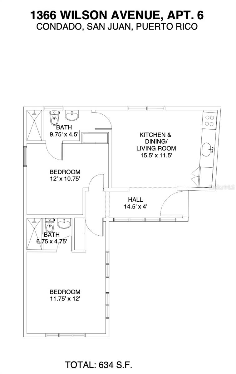
One or more photo(s) has been virtually staged. Perched on the second floor, Unit 6 showcases a well-appointed 2-bedroom, 2-bathroom layout encompassing 634 square feet. Recently upgraded with a new custom kitchen with quartz counter tops, imported tile flooring and modern appliances, the residence offers spacious bedrooms and a seamless flow between living and private areas. Three independent split A/C units—serving each bedroom and the main living space—provide optimal comfort year-round. A bright, airy and efficient design makes this an ideal low-maintenance urban retreat. These units are delivered furnished, select images are enhanced using AI to showcase the full potential of the space and inspire how you can personalize it to reflect your own style and vision. Location: Perfectly positioned in the heart of vibrant Condado, this residence offers an effortless lifestyle just moments from the beach, renowned restaurants, cafes, grocery stores, and premier entertainment. With quick access to major highways and only a 10 minute drive to the airport, the location seamlessly blends convenience with one of San Juan’s most desirable coastal settings. As part of an exclusive six-unit collection, residents enjoy access to a beautifully maintained shared courtyard, offering a quiet and intimate atmosphere in the heart of the city—where the energy of urban living meets the privacy and serenity of a secluded oasis.
Address: 1366 WILSON AVE #6 San Juan, Puerto Rico 00907

Additional Details

Interior

Total Bedrooms
2
Full Bathrooms
2
Laundry
Common Area
Appliances
Convection Oven, Microwave, Refrigerator
Other Interior Features
Ninguno

Exterior

Stories
1
Garage Space
1
Cooling
Mini-Split Unit(s)

Rooms

First Floor
Bedroom 1, Bathroom 1, Bedroom 2, Bathroom 2, Kitchen, Living Room

General

Days on Market
3
Garage
Yes
Pets Allowed
Monthly Pet Fee

Area and Lot

Lot Size in Acres
0.2
Living Area in SQFT
634
Community Features
Gated Community - No Guard

Financial

Annual Tax
$0
HOA Fees
$0

Location

1366 Wilson Ave

Interested in this property? Get in touch

Dalyza Janasiak Ramos

License: #V-4147
1904 McLeary Ave
Suite 1
San Juan Puerto Rico, 00911

Newly Added on Same Area

Active
670 AVENIDA PONCE DE LEON #404 San Juan, PR
$300,000
1 Beds
1 Bath
Active
17 GUERRERO NOBLE San Juan, PR
$1,249,000
4 Beds
3 Bath
4520 SQFT
Active
2 CALLE MADRID #9E San Juan, PR
$599,000
3 Beds
2 Bath
Active
176 SAN JORGE #3A San Juan, PR
$2,900
3 Beds
2.1 Bath
1539 SQFT
Active
426 ENSENADA BORINQUEN TOWERS III #1208 San Juan, PR
$180,000
3 Beds
1 Bath
Active
Cll Sara Isabel Spencer 852 URB. COUNTRY CLUB San Juan, PR
$297,000
5 Beds
2 Bath
4339 SQFT

Recently Sold on Same Area

Closed
524 JOSÉ SEVERO QUIÑONES ##3 San Juan, PR
$950
3 Beds
1 Bath
Closed
805 PONCE DE LEON #1501 San Juan, PR
$6,650,000
4 Beds
4.1 Bath
Closed
404 CONSTITUCION AVE #206 San Juan, PR
$3,200
1 Beds
1 Bath
Closed
1511 Ave. Ponce de Leon PH CIUDADELA SANTURCE #884 San Juan, PR
$860,000
2 Beds
2.1 Bath
1557 SQFT
Closed
851 BLVD BUENO AIRES #C103 San Juan, PR
$137,000
3 Beds
1 Bath
755 SQFT
Closed
1354 MAGDALENA #601 San Juan, PR
$320,000
1 Beds
1 Bath
466 SQFT
Resources
>