|
Property Type:
Residential
Subtype:
Single Family Residence
Status:
Active
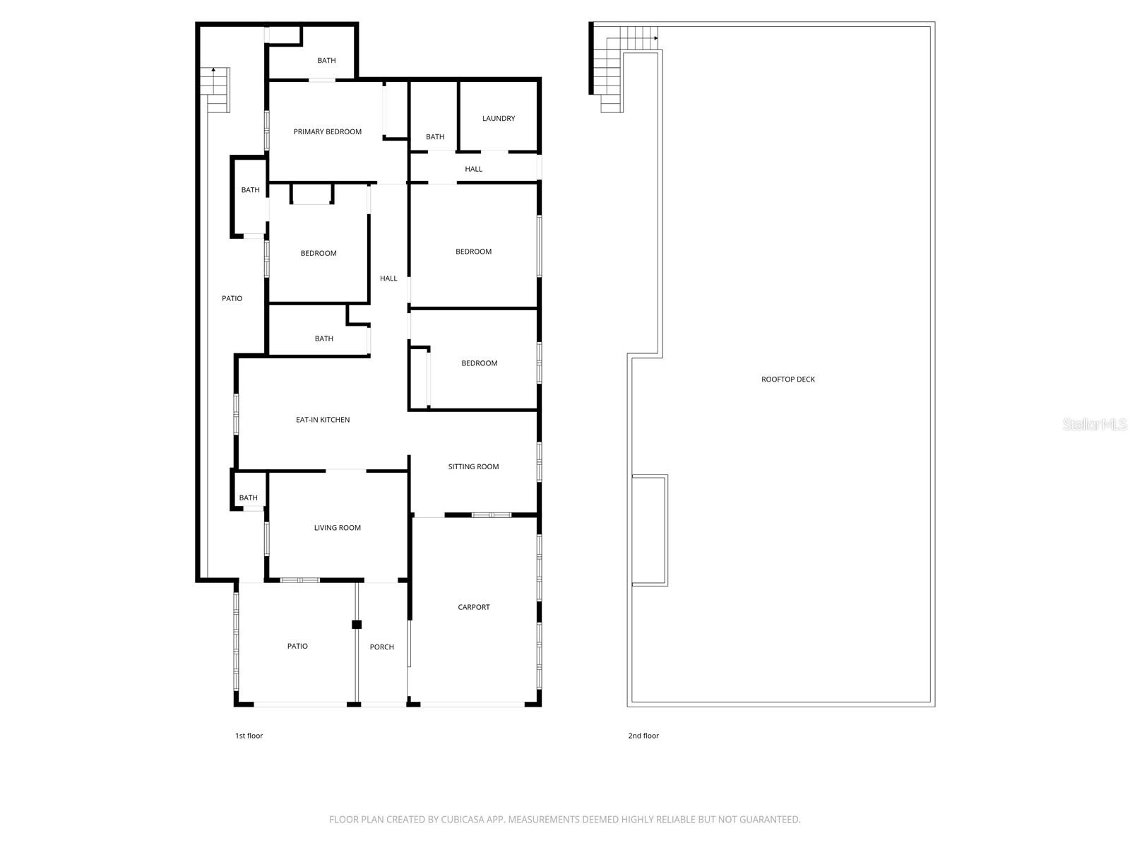
Discover the perfect blend of comfort, location, and investment potential in this beautiful 4-bedroom, 4.5-bathroom home in Aguadilla, an up-and-coming city on the west coast of Puerto Rico. Ideally situated just 5 minutes from the crystal-clear waters of Crash Boat Beach, this property offers the ultimate coastal lifestyle.
Convenience is at your doorstep, with the Rafael Hernández Airport, golf courses, top-rated restaurants, and some of Puerto Rico’s most famous surfing beaches all less than 15 minutes away. Whether you're catching a flight, enjoying a round of golf, or chasing world-class waves, everything you need is within easy reach.
This spacious residence is designed for both relaxed living and entertaining, featuring generously sized bedrooms, each with its own bathroom, plus an additional half bath for guests. The layout provides comfort and flexibility for families or visitors alike.
Whether you're searching for your forever home, a vacation retreat, or a smart investment property, this property and its location offers limitless potential.
Address:
7 CALLE OPALO Aguadilla, Puerto Rico 00603
Additional DetailsInteriorTotal Bedrooms 4 Full Bathrooms 4 Half Bathrooms 1 Laundry Laundry Closet Flooring Ceramic Tile Appliances Dryer, Microwave, Range, Refrigerator, Washer Other Interior Features Ceiling Fans(s), Eat-in Kitchen, Primary Bedroom Main Floor ExteriorConstruction Materials Block, Concrete Garage Space 2 Cooling Mini-Split Unit(s) Other Exterior Features Balcony, Other, Private Entrance, Sidewalk, Storage RoomsFirst Floor Primary Bedroom, Primary Bathroom, Bedroom 1, Bathroom 1, Bedroom 2, Bathroom 2, Bedroom 3, Bathroom 3, Bathroom 4, Kitchen, Living Room, Dining Room GeneralDays on Market 64 Garage Yes Area and LotLot Size in Acres 0.07 Living Area in SQFT 1600 Utilities Electricity Connected, Water Connected FinancialAnnual Tax $0 HOA Fees $0 Location
From Mayaguez to Aguadilla on #2, Make a left at the light of Las Cascadas Waterpark. Make another left to Opalo street #7. Across from the basketball court.
Interested in this property? Get in touch
Jessica Fox
License:
#22755
PO Box 1184
Rincon Puerto Rico, 00677
Phone:
941-893-7850
Office:
941-893-7850
Newly Added on Same AreaActive
VISTA DEL MAR LUXURY BARRIO ARENALES ROAD 110 #C 201 Aguadilla, PR
$349,000
2 Beds
2 Bath
81062 SQFT
Active
VISTA DEL MAR LUXURY BARRIO ARENALES ROAD 110 #C 201 Aguadilla, PR
$1,900
2 Beds
2 Bath
81062 SQFT
Recently Sold on Same Area |