39 COMM PLAYA GUAYANES Yabucoa, Puerto Rico

Property Type: Residential Lease
Subtype: Single Family Residence
Status: Active
4
Rooms
2
Baths
$2,995
Rent
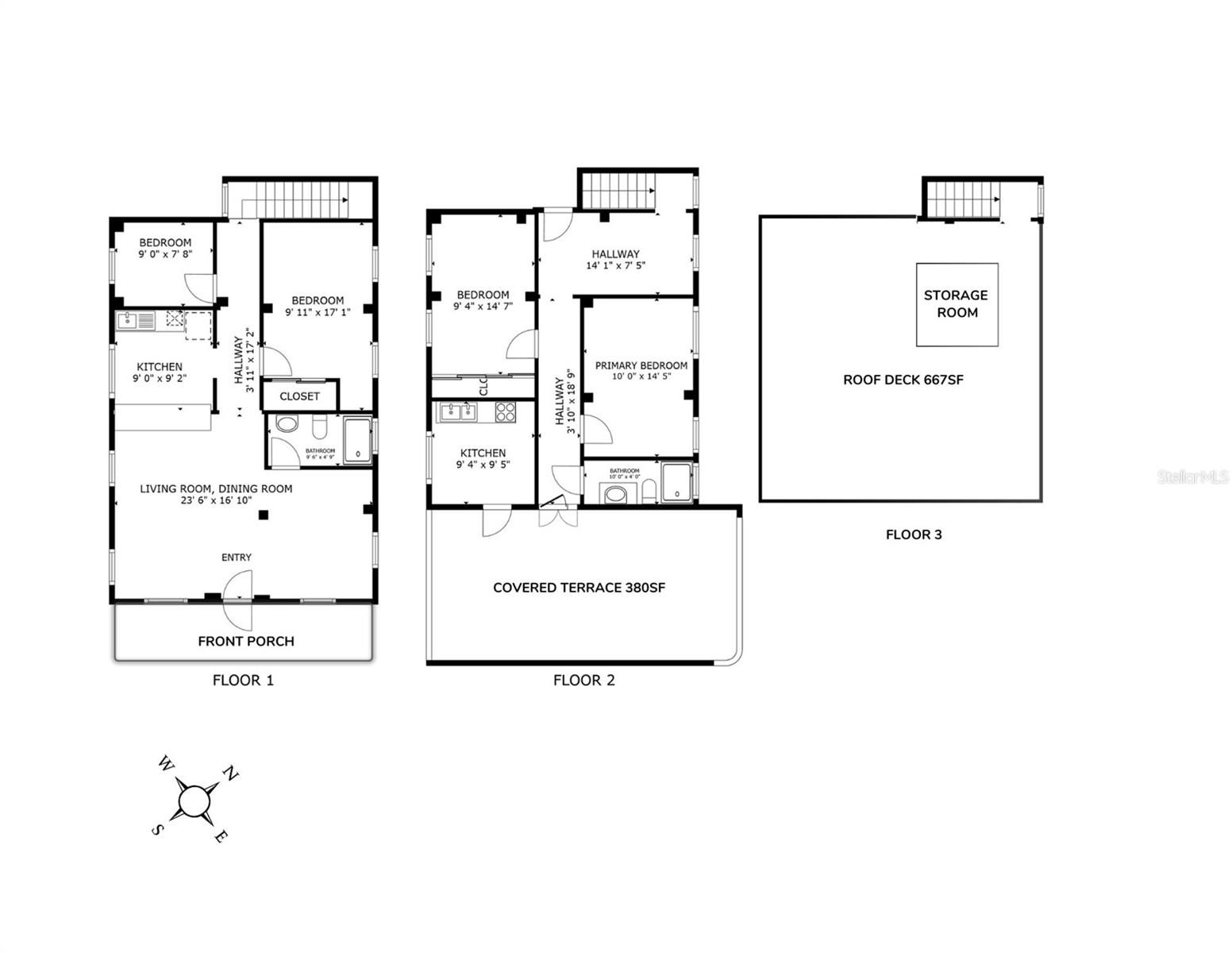
This 4-bedroom, 2-bathroom, three-level concrete home in Yabucoa offers panoramic ocean views as part of everyday living, with approximately 1,521 square feet of interior space—where the gentle, rhythmic sound of the ocean becomes a daily backdrop and a natural luxury amenity. Outdoor living is a defining feature, including a 380-square-foot covered terrace and an expansive 667-square-foot open roof deck with sweeping ocean and hillside views. The interior is bright and open, with terracotta-hued tile floors and white walls creating a timeless, airy feel. An open kitchen with island flows seamlessly into the main living area, while a bonus kitchen on the second floor is thoughtfully positioned to serve the covered terrace—ideal for entertaining, casual meals, or remote work accompanied by ocean breezes and the calming sound of waves in the distance. Bedrooms are quiet, well-proportioned, and naturally lit, two enjoying ocean views and the other two facing the hillside. Outdoor parking accommodates multiple vehicles. Located in Playa Guayanés, one of Yabucoa’s most scenic coastal enclaves, the home is just three minutes from the main road, offering both privacy and convenience. Close to Humacao and Palmas del Mar, residents enjoy easy access to beaches, marinas, golf, dining, shopping, and essential services. Ideal for long-term renters seeking space, views, and a refined indoor-outdoor coastal lifestyle enriched by the peaceful sound of the ocean.
Address: 39 COMM PLAYA GUAYANES Yabucoa, Puerto Rico 00767

Additional Details

Interior

Total Bedrooms
4
Full Bathrooms
2
Laundry
In Kitchen
Flooring
Ceramic Tile
Appliances
Electric Water Heater, Microwave, Washer
Other Interior Features
Living Room/Dining Room Combo, Open Floorplan

Exterior

Cooling
Mini-Split Unit(s)

General

Days on Market
1
Pets Allowed
Cats OK, Dogs OK

Area and Lot

Lot Size in Acres
0.28
Utilities
Electricity Available, Sewer Available, Sewer Connected
View
Park/Greenbelt, Mountain(s), Water

Financial

Annual Tax
$0
HOA Fees
$0

Location

2 mintues up the road off Route 906 in Yabucoa. in Comm Playa Guayanes

Interested in this property? Get in touch

Jillian Faulls

License: #26682
1055 Ashford Ave
San Juan Puerto Rico, 00907

Newly Added on Same Area

Active
Parcela #10 COMUNIDAD RURAL EL NEGRO, BARRIO CAMINO NUEVO Yabucoa, PR
$1,295,000
6 Beds
18923 SQFT
Active
Urb Mendez A-2 PR901 #A2 Yabucoa, PR
$189,000
2 Beds
2 Bath
2943 SQFT
Active
SR 182 Km. 15.6 BO GUAYABOTAS Yabucoa, PR
$183,000
4 Beds
2 Bath
3300 SQFT
Active
908 st BARRIO TEJAS Yabucoa, PR
$160,000
2 Beds
1 Bath
343949 SQFT
Active
PR 3 BARRIO JUAN MARTIN Yabucoa, PR
$475,000
4 Beds
5 Bath
1163 SQFT
Active
3.9 km BO JUAN MARTIN Yabucoa, PR
$175,000
7 Beds
3 Bath
496 SQFT

Recently Sold on Same Area

Closed
Solar 2 El Guano CAMINO NUEVO Yabucoa, PR
$580,000
4 Beds
3 Bath
5373 SQFT
Closed
252 CALLE FELICITA PINTO MORALES COMUNIDAD PLAYITA Yabucoa, PR
$93,000
3 Beds
1 Bath
980 SQFT
Closed
6 _ Yabucoa, PR
$135,000
3 Beds
1 Bath
2700 SQFT
Closed
Urb. Jaime C. Rodríguez CALLE 5 #E5 Yabucoa, PR
$100,000
5 Beds
1 Bath
8043 SQFT
Closed
Sec. El Negro Solar 106 BO CAMINO NUEVO Yabucoa, PR
$149,900
4 Beds
1.1 Bath
14755 SQFT
Closed
#56 CALLE CRISTOBAL COLON Yabucoa, PR
$349,000
3873 SQFT
Resources
>