500 PLANTATION VILLAGE DRIVE #3-208 Dorado, Puerto Rico

Property Type: Residential
Subtype: Condominium
Status: Active
3
Rooms
3.1
Baths
$3,495,000
Sale
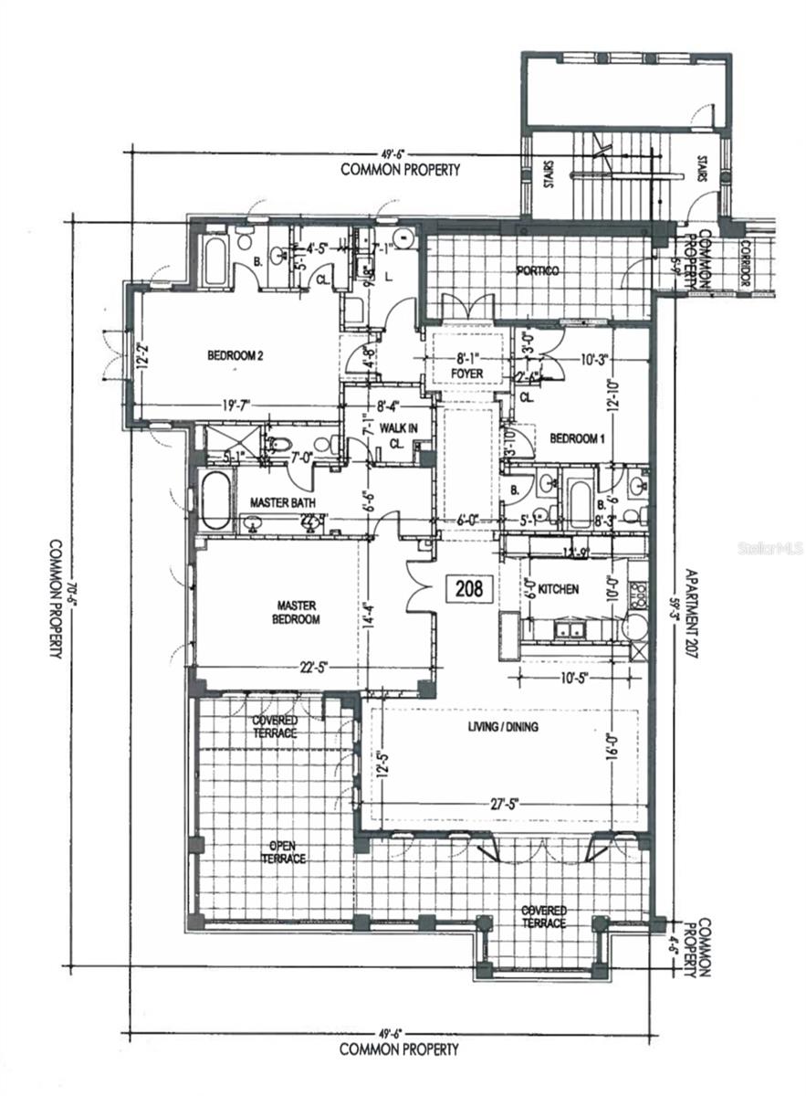
Plantation Village 3-208 offers a unique opportunity to own one of the coveted corner residences in Building 3—a second-story home defined by its expansive wrap-around terrace and serene elevated views. Set within the Dorado Beach Resort, this residence delivers a refined blend of indoor comfort and outdoor living, all within the exclusive community anchored by the Ritz-Carlton Reserve. Designed for light, space, and privacy, this 3-bedroom, 3.5-bathroom condo, with 2,337 sq. ft. of living area, features multiple exposures, oversized windows, and an airy layout that opens directly onto its signature terrace. Enjoy direct terrace access from both the living room and the primary bedroom, creating a seamless connection between interior spaces and the expansive outdoor area. The property is offered turn-key, complete with furnishings, making it easy to enjoy from the moment you arrive. Ownership in Plantation Village provides eligibility for the renowned Dorado Beach Resort membership, granting access to an unmatched collection of amenities: TPC golf courses, world-class beaches, tennis and pickleball facilities, members-only dining, multiple pools, the water park, a full fitness center, Encanto Beach Club, the Rockefeller Nature Trail, Spa Botánico, and the Barlovento beachfront experience. Residents of Building 3 also benefit from dual elevators, 24/7 concierge and security services, pet-friendly policies, and full emergency backup systems maintained by the on-site management team. A beautifully appointed home in one of Puerto Rico’s most exclusive neighborhoods, 3-208 is ready for immediate enjoyment. Contact us to schedule your private tour.
Address: 500 PLANTATION VILLAGE DRIVE #3-208 Dorado, Puerto Rico 00646

Additional Details

Interior

Total Bedrooms
3
Full Bathrooms
3
Half Bathrooms
1
Laundry
Laundry Room
Flooring
Ceramic Tile
Appliances
Built-In Oven, Cooktop, Dishwasher, Dryer, Electric Water Heater, Microwave, Refrigerator, Washer
Other Interior Features
Kitchen/Family Room Combo, Living Room/Dining Room Combo, Open Floorplan, Primary Bedroom Main Floor, Stone Counters, Walk-In Closet(s), Window Treatments

Exterior

Stories
4
Construction Materials
Concrete
Garage Space
2
Parking
Assigned, Covered, Deeded, Garage Door Opener, Golf Cart Garage, Golf Cart Parking, Guest, Underground
Heating
Electric
Cooling
Central Air
Other Exterior Features
Awning(s), Balcony

Rooms

First Floor
Kitchen, Primary Bedroom, Living Room

General

Garage
Yes
Pets Allowed
Yes

Area and Lot

Living Area in SQFT
2337
Utilities
Cable Available, Electricity Available, Fiber Optics
Community Features
Clubhouse, Fitness Center, Gated Community - Guard, Golf Carts OK, Golf, Park, Playground, Pool, Restaurant, Tennis Court(s)

Financial

Annual Tax
$0
HOA Fees
$2,184

Location

From San Juan/SJU: take PR-26 west to PR-22 (Autopista José de Diego) toward Bayamón/Arecibo. Exit at Dorado (PR-693) and continue north toward Dorado. Follow PR-693 to the main entrance of Dorado Beach Resort (Ritz-Carlton Reserve) on the left. Check in at security and follow the internal signs to Plantation Village.

Interested in this property? Get in touch

Mariangel Marti

License: #14566
320 Camino Guama
Dorado Puerto Rico, 32703

Newly Added on Same Area

Active
285 DORADO BEACH EAST Dorado, PR
$6,300,000
5 Beds
5.1 Bath
10726 SQFT
Active
500 PLANTATION DR. #306 Dorado, PR
$3,295,000
3 Beds
3.1 Bath
Active
Amber Street TREASURE POINT #34 Dorado, PR
$1,175,000
4 Beds
3.1 Bath
5510 SQFT
Active
170 CAMINO DE LOS JAZMINES Dorado, PR
$2,200,000
4 Beds
3.2 Bath
9983 SQFT
Active
120 VILLAS DE GOLF WEST #120 Dorado, PR
$4,200
4 Beds
4.1 Bath
3498 SQFT
Active
200 Dorado Beach Drive WEST BEACH RESIDENCES #3141-3142 Dorado, PR
$55,000,000
4 Beds
4.1 Bath

Recently Sold on Same Area

Closed
138 DORADO BEACH EAST ST Dorado, PR
$35,000
5 Beds
6.1 Bath
10208 SQFT
Closed
117 LOTOS Dorado, PR
$5,900
4 Beds
3.1 Bath
2000 SQFT
Closed
342 CAMINO DEL EUCALIPTO Dorado, PR
$2,500,000
4 Beds
3.2 Bath
10470 SQFT
Closed
595 MAR INDICO ST Dorado, PR
$8,500
4 Beds
2.2 Bath
5813 SQFT
Closed
21 THE ENCLAVE RESIDENCES Dorado, PR
$13,500,000
5 Beds
7.1 Bath
16883 SQFT
Closed
#651 CAMINO DE LAS AZALEAS Dorado, PR
$10,000
4 Beds
4.1 Bath
14746 SQFT
Resources
>