San Juan, Puerto Rico

Property Type: Commercial Sale
Subtype: Office
Status: Active
$2,795,000
Sale
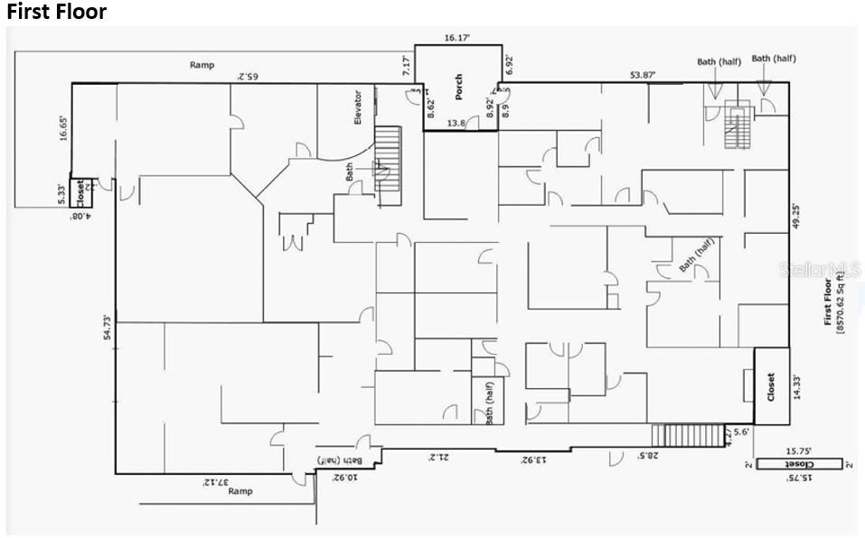
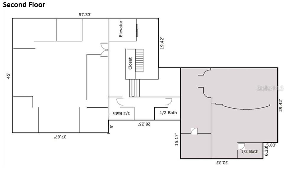
Commercial building/triple-frontage lot located at the intersection of José Martí, Padre Rufo, and Jamaica Streets (Floral Park, Hato Rey, San Juan). Lot size: 1,618 m²; construction: 14,227 sq ft distributed across a basement plus 3 levels. Reinforced-concrete structure formerly used as a clinical laboratory and medical offices. First level with multiple rooms (offices, X-ray, MRI), 8 half baths and 1 full bath; basement: 1,381 sq ft. Second level with offices, conference room, cubicles, and 3 half baths. Small third level with rooftop access. Fourteen open parking spaces. Zoning: R-I. Flood zone: Zone X (outside flood-risk area). Highest and best use: commercial. The property requires repairs.

Additional Details

Exterior

Construction Materials
Concrete

Area and Lot

Lot Size in Acres
0.4

Financial

Annual Tax
$0
HOA Fees
$0

Interested in this property? Get in touch

Armando Claudio Quintana

License: #19052
500 Blvd Paseo del Rio Apto 90
Humacao Puerto Rico, 00791

Newly Added on Same Area

Active
120 CHARDON AVE #801N San Juan, PR
$4,500
2 Beds
2 Bath

Recently Sold on Same Area

Closed
423 Francisco Sein URB FLORAL PARK San Juan, PR
$450,000
4229 SQFT
Closed
360 CALLE PALISTINA San Juan, PR
$49,900
3 Beds
2 Bath
1933 SQFT
Closed
214 URB. FLORAL PARK CALLE JULIO San Juan, PR
$265,000
2314 SQFT
Closed
568 CALLE SAN SEBASTIAN #6 San Juan, PR
$130,000
3090 SQFT
Closed
Bolivia #78 San Juan, PR
$495,000
3000 SQFT
Closed
178 URB. EL PRADO CALLE BELGICA San Juan, PR
$150,000
3 Beds
2 Bath
Resources
>