![]() ![]() ![]() ![]() ![]() ![]() ![]() ![]() ![]() ![]() ![]() ![]() ![]() ![]() ![]() ![]() ![]() ![]() ![]() ![]() ![]() ![]() ![]() ![]() ![]() ![]() ![]() ![]() ![]() ![]() ![]()
Property Type:
Residential
Subtype:
Single Family Residence
Status:
Pending
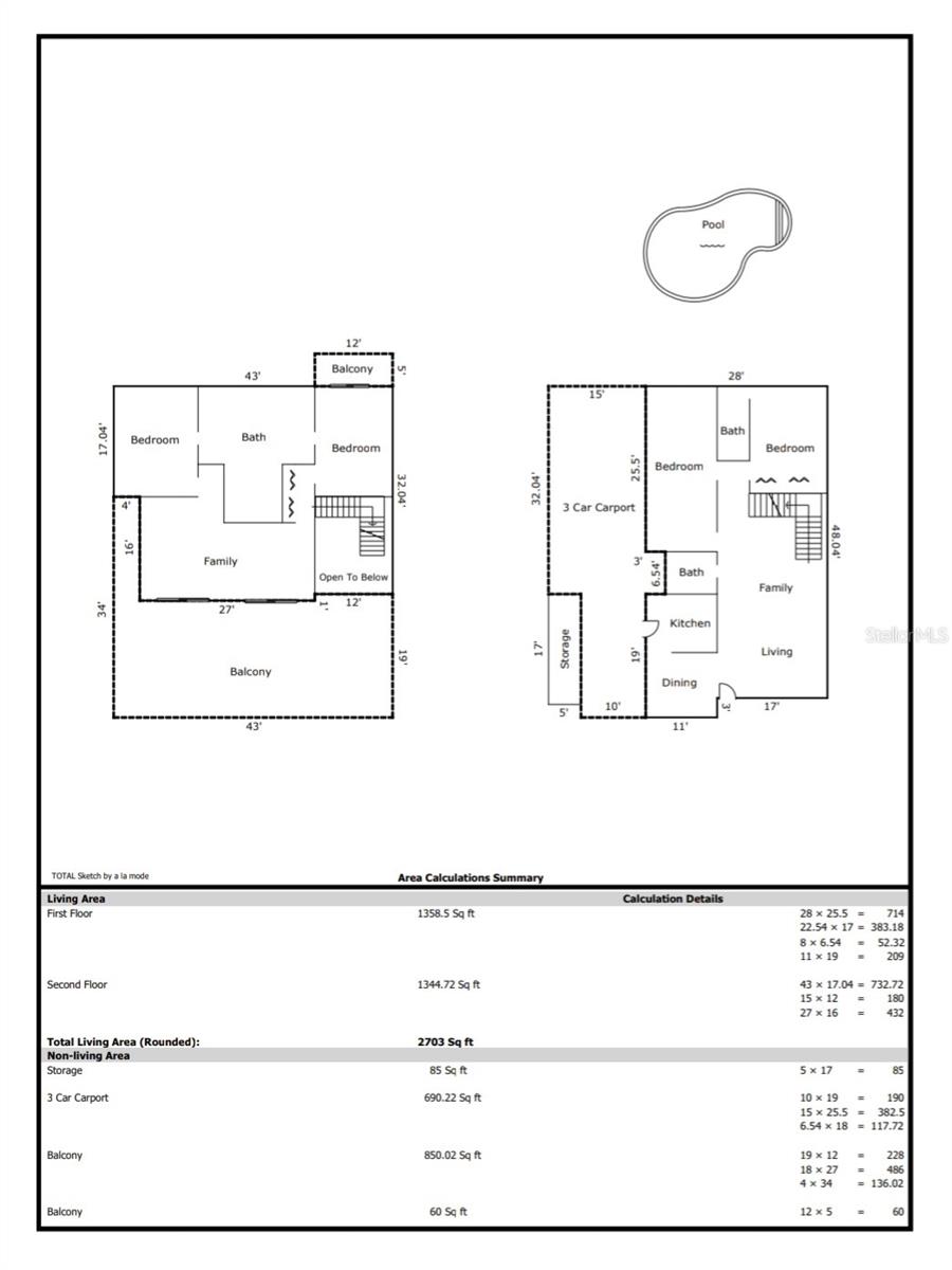
Under contract-accepting backup offers. One or more photo(s) has been virtually staged. Spacious property with great potential for investment or to convert into your next home. If you're looking for space, location, and the opportunity to remodel to your liking, this property in Urb. Crown Hills may be what you need. It consists of 2 levels, 4 bedrooms, 3 bathrooms, a entertainment room, living room, dining room, kitchen, laundry area, and a private pool. It also has a carport for 3 cars and balconies with views. 2,703 sq ft of construction on a 1,030 sq ft lot. Located in a quiet community with controlled access and excellent connections to main roads (PR-177, PR-199, Luis A. Ferré Expressway). Near to Hospitals, schools, shopping center and more.
This property requires repairs and is being sold as is. HOA $25 monthly | CRIM $1,318 approx. | FEMA Zone: X (minimal risk).
Address:
1786 GUAMANI San Juan, Puerto Rico 00926
Additional DetailsInteriorTotal Bedrooms 4 Full Bathrooms 3 Laundry In Garage, Laundry Closet Flooring Ceramic Tile Other Interior Features Built-in Features, High Ceilings, Other, Primary Bedroom Main Floor ExteriorConstruction Materials Concrete Vegetation Trees/Landscaped HOA Amenities Clubhouse, Gated, Maintenance, Other, Playground, Recreation Facilities Other Exterior Features Balcony RoomsSecond Floor Primary Bedroom, Primary Bathroom, Bedroom 2, Bedroom 3, Bedroom 4, Bathroom 2, Living Room, Balcony/Porch/Lanai First Floor Bathroom 3, Kitchen, Laundry, Family Room, Dining Room GeneralDays on Market 3 Pets Allowed Yes Area and LotLot Size in Acres 0.25 Living Area in SQFT 2703 Architectural Style Custom Utilities BB/HS Internet Available, Cable Available, Electricity Available, Phone Available, Public, Sewer Connected, Water Available Community Features Clubhouse, Gated Community - No Guard, Park, Playground, Sidewalks View City FinancialAnnual Tax $1,318 HOA Fees $25 Location
From Plaza Las Américas toward Avenida Roosevelt (PR-23) heading south. Continue straight and merge onto PR-18 (Las Américas Expressway) toward Cupey / Caguas. Take the exit for PR-176 (Avenida Winston Churchill) until you reach the entrance of Urbanización Crown Hills. 5. Once inside the neighborhood, look for the street and house number.
Interested in this property? Get in touch
Laura Hernandez
License:
#09703
311 Teresa Jornet
Apt. 2502
San Juan Puerto Rico, 00926
Phone:
787-292-9349
Office:
787-380-3296
Newly Added on Same AreaRecently Sold on Same AreaClosed
Cond. Portales de Altames AVE. SAN ALFONSO APT 1505 #1505 San Juan, PR
$1,900
3 Beds
2 Bath
1226 SQFT
|






























