![]() ![]()
Tipo de Propiedad:
Terreno
Estado:
Activo
This exceptional industrial lot is located in Bayamón’s prime industrial district, strategically positioned near major ports and key distributors including Goya and Puma Energy, among others.
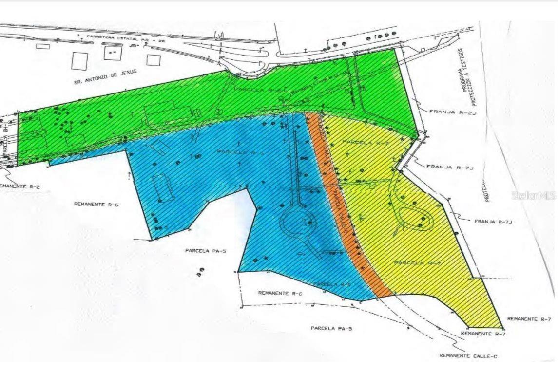
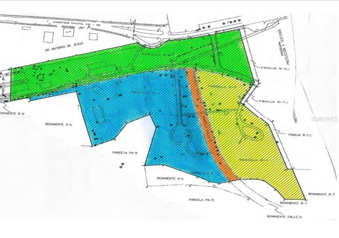
With Heavy Industrial (I-P) zoning and a total registered area of 114,223.77 square meters (28.19 acres) across four segregated parcels, the site provides extraordinary flexibility for large-scale development.
Its strategic location, connectivity, and ample space make it ideal for distribution centers, logistics hubs, manufacturing facilities, or industrial warehouses seeking proximity to San Juan’s metropolitan market.
Highlights:
• Prime Bayamón industrial location near major distributors and infrastructure
• Heavy Industrial (I-P) zoning
• Total area: 114,223.77 m² (28.19 acres)
• Subdivided into 4 registered parcels
• Ideal for logistics, warehousing, or manufacturing projects
• $148.83 a square meter
Dirección:
CARRETERA 2, KM 3.1 Bayamón, Puerto Rico 00961
Detalles AdicionalesÁrea y TerrenoTamaño del Terreno en Acres 26.97 Utilidades Electricity Available, Sewer Available, Water Available InversiónTax Anual $0 Costos de HOA $0 Localización
Parque Industrial Luchetti, Bo Juan Sanchez. Solar R-6 Bayamón, Puerto Rico
¿Interesado en la Propiedad? Comunicate
Meilyn Guzman Ensenat
Licencia:
#20287
Cerro Real M15
Guaynabo Puerto Rico, 00969
Teléfono:
787-408-1894
Oficina:
787-408-1894
Nuevos Listados en la Misma ÁreaRecientemente Vendido en la Misma Área |

