Sr 15 km 20.4 QUEBRADA ARRIBA AND CULEBRAS DEBAJO Cayey, Puerto Rico

Tipo de Propiedad: Residencial
Subtipo: Single Family Residence
Estado: Activo
5
Cuartos
3
BaÑos
$255,000
Venta
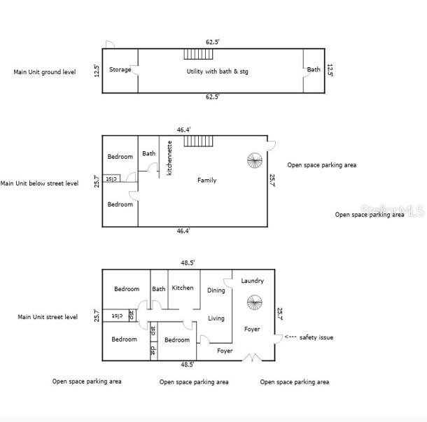
Spacious 3-story residence with excellent layout: 5 bedrooms in total. 3 full bathrooms. 3-story residence: First level: 3 bedrooms and 1 bathroom. Second level: 2 bedrooms and 1 bathroom. Third level: 1 additional bathroom and a large, flexible space to use according to your needs and imagination. Prime location - In the beautiful countryside of Quebrada Arriba and Culebras Debajo, kilometer 20.4 of the town of Cayey. - Farm with approximately 4,235 m² of land. - Surrounded by nature, fresh air, and spectacular views. - Close to good restaurants and local businesses. In the stunning town of Cayey, where you have everything you need without leaving the area: - Shopping centers with a movie theater and a variety of shops. - A wide range of restaurants and supermarkets. - Medical offices and hospitals. - Schools and essential services Enjoy the countryside with all the amenities. This residence combines the tranquility of the natural surroundings with ample spaces that you can adapt to your lifestyle. Each family member can have their own space, a haven of peace they never imagined. It also represents an excellent investment opportunity or the ideal place to develop your dream business. A great investment opportunity in Cayey, where nature and the convenience of modern life come together in one place!
Dirección: Sr 15 km 20.4 QUEBRADA ARRIBA AND CULEBRAS DEBAJO Cayey, Puerto Rico 00736

Detalles Adicionales

Interior

Total de Cuartos
5
Baños Completos
3
Lavanderia
Inside
Pisos
Concrete
Enseres
Electric Water Heater, Range, Refrigerator
Otros Detalles
Living Room/Dining Room Combo

Exterior

Niveles
2
Materiales de Construcción
Concrete
Otros Detalles
Balcony, Courtyard, Storage

Cuartos

First Piso
Bedroom 3, Bedroom 2, Primary Bedroom, Kitchen, Dining Room, Living Room, Bathroom 1
Second Piso
Bedroom 1, Bedroom 2, Bathroom 2
Third Piso
Bathroom 3

General

Dias en el Mercado
160

Área y Terreno

Tamaño del Terreno en Acres
1.07
Área Habitable en Pies Cuadrados
2439
Utilidades
Electricity Connected, Public, Water Connected

Inversión

Tax Anual
$0
Costos de HOA
$0

Localización

From Cayey Shopping Center Cayey,PR 00736 Head southwest toward Av. Luis Muñoz Marín/PR-15 58 m Turn left 160 m Turn left toward Av. Luis Muñoz Marín/PR-15 130 m Turn left onto Av. Luis Muñoz Marín/PR-15 - Continue to follow PR-15 Destination will be on the left 4.7 km PR-15 Cayey, 00736

¿Interesado en la Propiedad? Comunicate

Nelly Vianette Sanchez

Licencia: #9864
HC5 Box 5893
Yabucoa Puerto Rico, 00767
Teléfono: 787-460-5122

Nuevos Listados en la Misma Área

Activo
741 Km 0.9 CULEBRA BAJO Cayey, PR
$550,000
4 Cuartos
3.1 Baños
3930 Pies Cuadrados
Activo
km 16.5 PR-15 Cayey, PR
$1,795,000
3 Cuartos
3.1 Baños
1390515 Pies Cuadrados
Activo
730 CARR KM Cayey, PR
$69,900
3 Cuartos
2 Baños
8867 Pies Cuadrados
Pendiente
Rd 15 Km 17.7 JAJOME ALTO WARD Cayey, PR
$50,000
3 Cuartos
1 Baños
16457 Pies Cuadrados
Activo
PR-184 KM 32.4 S BEATRIZ Cayey, PR
$495,000
3 Cuartos
2.1 Baños
15946 Pies Cuadrados
Activo
D-5 CALLE LA BORINQUEÑA Cayey, PR
$1,200,000
4 Cuartos
3 Baños
6210 Pies Cuadrados

Recientemente Vendido en la Misma Área

Cerrado
1 COND VILLA BEATRIZ #1001 Cayey, PR
$115,000
3 Cuartos
1 Baños
Cerrado
BARRIO TOÍTA SECTOR LAS PARRAS LOTE #2 Cayey, PR
$170,000
3 Cuartos
2 Baños
8345 Pies Cuadrados
Cerrado
MONTE LLANO CHALETS LAS MUESAS #1-F Cayey, PR
$1,600
3 Cuartos
2.1 Baños
Cerrado
Sierra Real 1 Cayey, PR
$1,500
4 Cuartos
2 Baños
5080 Pies Cuadrados
Cerrado
Apt B-202 COND. CHALETS DE SAN MARTIN #B-202 Cayey, PR
$165,000
3 Cuartos
2 Baños
Cerrado
184 km BO GUAVATE BRISAS DEL BOSQUE #7 Cayey, PR
$1,650,000
5 Cuartos
4.1 Baños
36610 Pies Cuadrados
Resources
>