304 CAMINO PUERTO NUEVO Lajas, Puerto Rico

Property Type: Residential
Subtype: Single Family Residence
Status: Pending
3
Rooms
3
Baths
$379,000
Sale
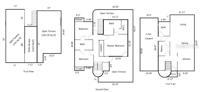
In the exclusive Urb. Terrazas de La Parguera, Lajas (coords. 17.975312, -67.054587), a 3-bedroom, 3-bath residence with approx. 1,461 sq ft of GLA on a 415 m² lot (˜4,464 sq ft) is for sale. It features a comfortable living–dining–kitchen layout and generous outdoor areas to enjoy the coastal breeze, including two open terraces of 341 sq ft and 366.35 sq ft, a pergola terrace of 150.5 sq ft, a two-car carport, and an outdoor shower by the carport; adding these non-habitable areas to the GLA, the gross area totals ˜3,149 sq ft. The community offers a controlled-access gate and a pool. The location is outstanding: just minutes from La Parguera’s town center, its marinas, boat tours and water taxis to the cays (e.g., Mata La Gata and Cayo Enrique), and its famous bioluminescent bay, plus restaurants, cafés, and a vibrant nautical scene. With easy access via PR-304, it’s a strategic spot for those seeking to combine residential tranquility, a coastal lifestyle, and strong short-term rental demand (subject to permits and applicable regulations). From the terraces, enjoy views of the sea and cays, making this property an excellent option for living or investing in Puerto Rico’s southwest.
Address: 304 CAMINO PUERTO NUEVO Lajas, Puerto Rico 00667

Additional Details

Interior

Total Bedrooms
3
Full Bathrooms
3
Laundry
Inside
Flooring
Tile
Appliances
Cooktop, Dryer, Electric Water Heater, Microwave, Range, Refrigerator, Washer
Other Interior Features
Eat-in Kitchen, Kitchen/Family Room Combo, PrimaryBedroom Upstairs

Exterior

Construction Materials
Concrete
Other Exterior Features
Garden, Courtyard, Sidewalk, Private Mailbox

Rooms

Second Floor
Primary Bedroom
First Floor
Kitchen, Living Room

General

Days on Market
32
Pets Allowed
Yes

Area and Lot

Lot Size in Acres
0.09
Living Area in SQFT
1462
Utilities
Water Connected, Electricity Connected, Sewer Connected

Financial

Annual Tax
$0
HOA Fees
$235

Location

Aeropuerto Internacional Rafael Hernández To the Property Aeropuerto Internacional Rafael Hernández, Hangar Rd, Aguadilla, Continue to Engineer Orlando Alárcon Ave/Hangar Rd Take Carr Puerto Rico 2 O/PR-2 W, Desvío Oeste de Mayagüez, PR-114 and PR-116 to Calle 1 in Lajas Drive to Calle 304 Camino Puerto Viejo, Urb Terrazas de La Parguera.

Interested in this property? Get in touch

Armando Claudio Quintana

License: #19052
500 Blvd Paseo del Rio Apto 90
Humacao Puerto Rico, 00791

Newly Added on Same Area

Pending
65 de Infanteria 65 DE INFANTERIA Lajas, PR
$265,000
2395 SQFT
Pending
316 BARRIO CANDELARIA. SOLAR 1 Lajas, PR
$445,000
4 Beds
3.1 Bath
15704 SQFT
Active
PR-306 K0 H7 PALMAREJO WARD Lajas, PR
$750,000
279554 SQFT
Active
Carr. 321, Km. 1.6 BO. SANTA ROSA Lajas, PR
$175,000
2 Beds
1 Bath
10565 SQFT
Active
B19 Calle 3 URBANIZACION OCEAN VIEW Lajas, PR
$539,000
3 Beds
2.1 Bath
6943 SQFT
Active
9 REPARTO LABORDE #9 Lajas, PR
$1,300,000
4 Beds
3.1 Bath
20365 SQFT

Recently Sold on Same Area

Closed
SR 116 km 0.3 Estancias DEL PARRA EXTENSION #F-4 Lajas, PR
$190,000
3 Beds
2 Bath
3229 SQFT
Closed
394 B-2 Lajas, PR
$160,000
9 Beds
4 Bath
22000 SQFT
Closed
6 URB. SAN RAFAEL Lajas, PR
$1,300
2 Beds
1 Bath
5224 SQFT
Closed
B URB. PALMAS DEL VALLE #13 Lajas, PR
$1,200
3 Beds
2 Bath
Closed
ORQUIDEA EL VALLE I #149 Lajas, PR
$124,900
3 Beds
1 Bath
3497 SQFT
Closed
BO. PLATA Lajas, PR
$53,000
8726 SQFT
Resources
>